Artola

Te koop Herenhuis Costa Del Sol Artola € 595.000,-

Ref.no: RSOR5072410
Price: € 595.000,-

1-7980e48d732b6fc85c14b43b94d2aa54.jpg

Te koop Herenhuis Costa Del Sol Artola € 595.000,-

Bedrooms5
Salles de bains4
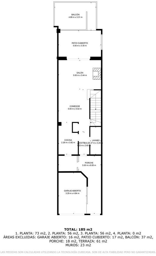
Living area178m²
Poolyes
Gardenno
Parkingyes
Built year2007
Setting: Close To Golf, Close To Port, Close To Shops, Close To Sea, Close To Marina, Urbanisation
Orientation: North, North West
Condition: Recently Renovated
Pool: Communal
Views: Golf
Features: Covered Terrace, Near Transport, Private Terrace, Basement
Furniture: Fully Furnished
Security: Gated Complex
Parking: Garage, Private
Utilities: Electricity
Category: Golf, Holiday Homes, Resale
Ref.no: RSOR5072410
Price: € 595.000,-

Plus d'information ›››
Te koop Herenhuis Costa Del Sol Artola € 595.000,-

Opportunity! Prime location in the sought-after Artola Alta area, directly overlooking Cabopino Golf and only a 12-minute walk (approx. 900 meters) to the beautiful Cabopino's Beach and the Cabopino Marina.

This townhouse is ideal for families, golf lovers, or those seeking a high-end holiday home in one of Marbella's most tranquil and green areas, just steps from the beach.

Private Garage - With direct access to the property.

Peaceful Yet Connected - Quiet residential setting with easy access to the AP-7, international schools, public transport, and all amenities.

Artola Alta
Why choose the area?
You have a winning combination: sea, golf, nature and comfort in a premium location.
Perfect both for year-round living and exclusive holidays.
Authentic ambience without the urbanistic excesses of other areas of the Costa del Sol.

Cabopino Marina
Very close to Artola Alta, with approximately 169 moorings and a pleasant area with bars, restaurants and nautical activities.
It offers a quiet and pleasant atmosphere, ideal both during the day and at sunset.

Cabopino Golf
18-hole golf club designed by Juan Ligués Creus, combining par-3, par-4 and par-5 with lakes, curious pine trees and spectacular views of the Mediterranean Sea.
The third hole is particularly celebrated: a par-4 from an elevated tee at a height of 80 m, protected by bunkers, with breathtaking views.
Located in Artola Alta, just a few minutes' walk from the beach and the port, it offers a well-kept environment and a welcoming clubhouse.


Alternatives

1-7980e48d732b6fc85c14b43b94d2aa54.jpg

Te koop Herenhuis Costa Del Sol Benalmadena Costa € 575.000,-

Price € 575.000,-
Plus d'information
1-7980e48d732b6fc85c14b43b94d2aa54.jpg

Te koop Herenhuis Costa Del Sol Estepona € 665.000,-

Price € 665.000,-
Plus d'information
1-7980e48d732b6fc85c14b43b94d2aa54.jpg

Te koop Herenhuis Costa Del Sol Calypso € 549.000,-

Price € 549.000,-
Plus d'information
1-7980e48d732b6fc85c14b43b94d2aa54.jpg

Te koop Herenhuis Costa Del Sol Alhaurín El Grande € 599.000,-

Price € 599.000,-
Plus d'information
Disclaimer | Links
Casadelmar %lng_cookie_notice% %lng_close%
x